从厂区规划、工艺设计、设备选型、设备制作、设备安装、试运行直至交付正式投产,潍坊隆福全程跟踪服务
入料工段:

LNG热风炉:

生产工段:

尾气工段:

关于高湿物料烘干机

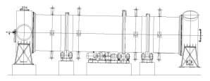
高湿物料烘干机外形图
高湿物料烘干机可将含水量65%~70%的物料一次烘干至终含水量25%~30%,比较适用于结构疏松的物料(牛粪、猪粪、秸秆、药渣、稻壳鸡粪等)。
高湿物料干燥机前端7~8米处扬料板可将物料无死角的扬起在筒体中间,与来自LNG热风炉的热量百分之百接触,达到热利用率百分之百的目的,此时物料处于迅速升温阶段;筒体中间段8~18米处的物料处于水分散发阶段,散发的水蒸气被尾部风机吸走;筒体尾部19~26处温度慢慢降下来,物料水分达到标准。
高湿物料干燥机采用顺流烘干工艺;高湿物料烘干机为一横向转动的筒体,前后两套托轮装置,整套设备操作简单,维护简便;筒体外部振打装置可防治筒体粘壁;筒体前后全密闭,防治粉尘及干燥臭气溢出车间。
规格 筒体 生产能力 (m³/h) 减速机 功率 (KW)
内径(mm) 长度(mm) 倾角(°) 转速(rpm)
HG1624 1600 24000 1.5 5.1 -6 ZQ650 15
HG1824 1800 24000 1.5 4.5 -8 ZQ650 18.5
HG2024 2000 24000 1.5 4.66 -10 ZQ750 22
HG2224 2200 24000 1.5 3.92 -16 ZQ850 37
HG2424 2400 24000 1.5 3.6 -18 ZQ850 45
HG2626 2600 26000 1.5 3.42 -20 ZQ1000 55
HG2828 2800 28000 1.5 2.81 -22 ZL115 75
| 上一条:有机肥设备~料仓输送机 | 下一条:年产3万吨鸡粪有机肥设备(挤压造粒) |





