![]() |
|
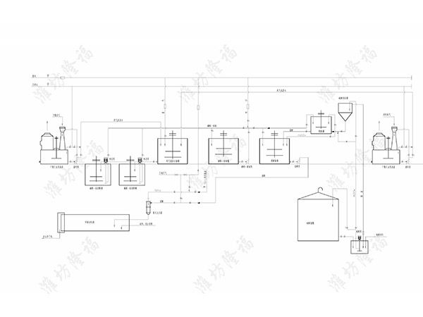
工艺简介:
1、 浓硫酸、水按比例稀释后经转子流量计、液氨汽化后经涡液流量计进入管式反应器,瞬间中和反应生成硫酸铵料浆,产生压力将硫酸铵料浆喷入转鼓造粒机内。
2、 磷酸一铵(或熔融)、氯化钾经粉碎、计量后,进入转鼓造粒机内,粉状物料与硫酸铵料浆混合,形成一定液相的固溶体,在转鼓造粒机内滚动造粒,同时在高温下各物料间复分解反应生成复盐。;
3、 造粒后的物料经烘干、冷却、筛分、计量、包装成为成品。
氨酸法(喷浆)造粒复合肥重要组成设备:
1、管式反应器。管式反应器安装在造粒机入口端,平行伸入造粒机内,硫酸与液氨中和反应产生的蒸汽压力将料浆均匀的喷到造粒机内的物料上,使物料与料浆充分混合均匀造粒。
2、转鼓造粒机。转鼓造粒机内衬耐高温、耐酸、耐磨的天然橡胶板并在造粒机筒体上开气孔,使物料在造粒机转动过程中随着衬板的振打而自然脱落,防止粘壁。
3、造粒尾气。生产过程中,硫酸与气氨在反应过程中会有过量的气氨逸出。转鼓造粒机尾部采用全密封装置,将生产过程中产生的尾气通过离心式风机送到文丘里洗涤塔中处理,洗涤液使用一段时间后,用泵送到配酸工序作为工艺水使用。
氨酸法(喷浆)造粒生产复合肥优势:
1、 投资省:在原蒸汽转鼓造粒复合肥装置上增加管式反应器、造粒尾气洗涤装置、氨酸计量装置和造粒机衬板改造就可进行生产。
2、 液氨和硫酸直接进入造粒机。稀硫酸既是一种粘性原料又充当液相参与造粒过程,并能提供一定的热能,提高造粒时物料的温度,降低物料的含水量,大大减少了干燥的负荷。
3、 氨酸中和反应生产的硫酸铵料浆可替代粘性造粒添加剂,在生产过程中不需要添加膨润土或者凹凸棒土等粘结剂。成球率高,物料返料比低,同等转鼓造粒工艺产量可提高20%~30%,降低生产成本。
4、 可生产总养分含量25-54%的各种产品,养分配比调节幅度宽;产品质量指标符合GB15063-2001标准,颗粒圆整、光滑、抗压强度高,肥料水溶性好,水分含量低。
全自动配料区
|
|
人工配料区
|
|
造粒区—氨化造粒
|
|
肥料烘干—肥料冷却
|
|
|
|
成品筛分(2.3mm~4.5mm)
|
|
LNG热风炉 生物质能热风
|
|
包膜(防结块)
|
|
颗粒包装秤

机器人码垛
|
|
从厂区规划、工艺设计、设备选型、设备制作、设备安装、试运行直至交付正式投产,潍坊隆福全程跟踪服务
网址:www.weifanglongfu.com
联系方式:王总13953699265
孙总 18263637732
| 上一条:20万吨BB肥生产线 | 下一条:尿熔喷浆造粒复合(混)肥 |

























